安远县农村住房户型推荐
为提升我县农村住房设计和建设水平,加强农村住房风貌管控,改善农村居住条件和人居环境,现推荐以下户型,供农村建房户免费使用。
户型一
户型特色:一层户型:客厅、餐厅、厨房、车库、卫生间;二层户型:起居室、卧室x3、卫生间x3、阳台;三层户型:卧室x2、卫生间、阳台、露台。
附件:效果模型及平面设计图




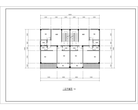
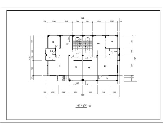
户型二
户型特色:一层户型:客厅、餐厅、厨房、车库、卫生间;二层户型:起居室、卧室x4、卫生间x3、阳台;三层户型:卧室、储物间、卫生间、凉台、露台。
附件:效果模型及平面设计图




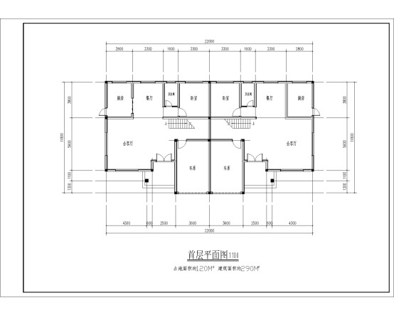
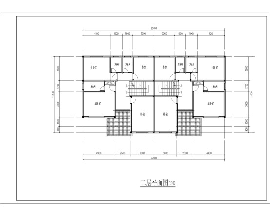
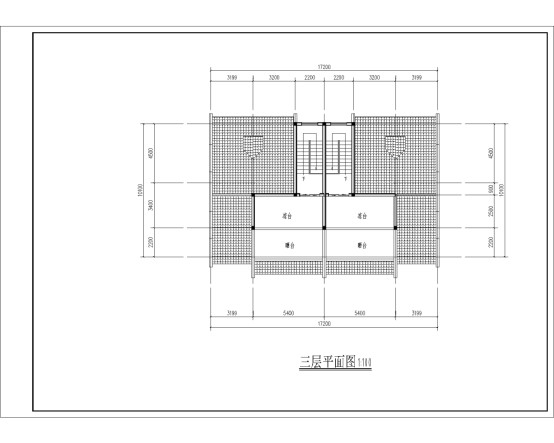
户型三
户型特色:一楼主要是日常会客场所,设置一个大客厅,及厨房、餐厅、卫生间、车库;二楼主要为日常休息活动场所,设置卧室x3、书房、卫生间x3;三楼主要为日常休息储物场所,设置卧室、杂物间、卫生间、洗衣服、凉台、露台。
附件:效果模型及平面设计图




户型四
户型特色:一层户型:客厅、餐厅、厨房、车库、卫生间;二层户型:起居室、卧室x3、卫生间、阳台;三层户型:凉台、露台。
附件:效果模型及平面设计图




户型五
户型特色:一层户型:客厅、餐厅、厨房、车库、卫生间;二层户型:起居室、卧室x3、卫生间x3、阳台;三层户型:卧室x2、卫生间、阳台、露台。
附件:效果模型及平面设计图





赣公网安备36072602000001号 